12099 Natoma Ct

$3,650,000
12099 Natoma Court, SARATOGA, CA 95070
12099 Natoma Ct

12099 Natoma Ct

$3,650,000

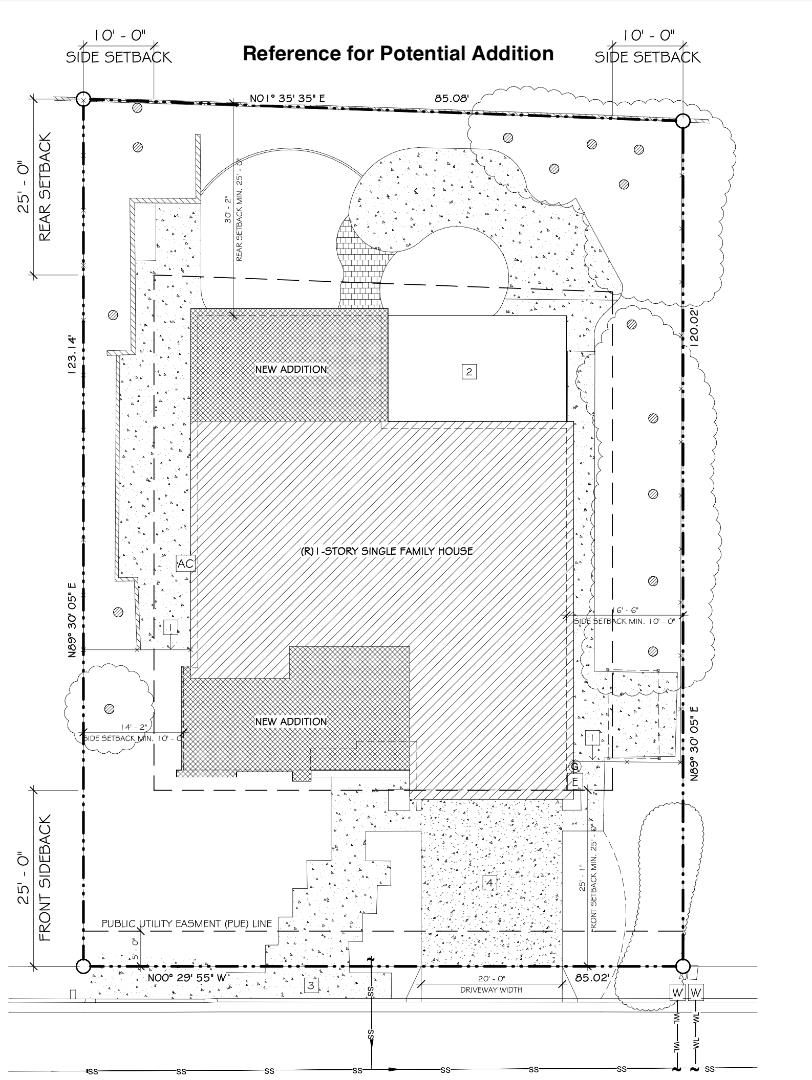
Discover incredible potential in this well-kept 3-bedroom, 2-bath home offering 1,583 sq ft of bright, functional living space on a rare 10,370 sq ft lot. While modestly updated, this property stands out for its outstanding expansion and redevelopment possibilities.The expansive lot offers ample space to add on or build new, with architectural renderings provided by a designer to help inspire your vision. The deep backyard, surrounded by mature trees, offers privacy and tranquilityideal for future outdoor living or ADU possibilities.Located in a peaceful, highly desirable neighborhood within the top-rated Lynbrook High School, and just minutes from parks, shopping, and major commute routes, this is a prime opportunity for builders, investors, or end-users to create something truly special.
Caleb Fenner
Caleb Fenner Contact

Features & Amenities

Interior

Total Bedrooms 3
Total Bathrooms 2
Full Bathrooms 2
Fireplace Living Room

Exterior

Stories 1
Garage Space 2.0
Water Source Public
POOL None
ROOF Wood
Parking Attached
Heat type Forced Air, Natural Gas, Central
Air Conditioning Central Air
Sewer Public Sewer

Area & Lot

Status Sold
LIVING SPACE 1,583 Sq.Ft.
TOTAL AREA 1,583 Sq.Ft.
LOT SIZE 10,371.64 Sq.Ft.
MLS® ID ML82010776
Type Residential
Year Built 1965
School District Fremont Union High

Financial

SALES PRICE $3,650,000
Zoning R110
View Virtual Tour

Work With Caleb

My leadership skills, business background, entrepreneurship, and attention to detail provide me with the keen ability to interpret the needs of my clients.

Let's Connect